First
with Purpose
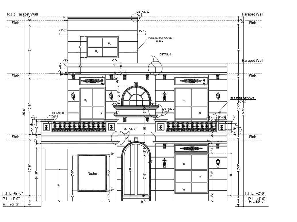
Your plans aren't just functional, they are "Vastu-aligned," integrating natural forces like sunlight and wind for better energy flow, we blend ancient Indian architectural science with modern design to create harmonious living environments. Our plans focus on directional alignment, such as placing the kitchen in the southeast and the master bedroom in the southwest to promote balance and prosperity.
Local Compliance:- Since PMRDA and PMC often have different FSI (Floor Space Index) and zoning rules, our expertise in both ensures clients get the maximum permissible built-up area for their specific location, We manage the complete approval process for diverse local authorities including the Pune Municipal Corporation (PMC), Pimpri-Chinchwad Municipal Corporation (PCMC), and the Pune Metropolitan Region Development Authority (PMRDA). This includes managing mandatory documentation like 7/12 extracts, zoning certificates, and structural stability reports to ensure your project starts without legal delays.
•Registered agreement with us.
•The last and final stage. We make sure you are well settled in your newly constructed home. Our journey together doesn't end here. We provide 10 years of warranty on RCC Structure. (for warranty, Terms and conditions apply)


















